$ 915,000
–
1685 Jonathan Road
This listing presented by
Brad & Rick Hamer-Jackson
. Contact Brad by phone:
Brad 250-470-1422 | Rick 250-862-1622
or email direct
here
.
Overview
Map & Nearby
Street View
Print
Download
Contact Agent
Listing Info
Area:
Kelowna
Property Type:
Single Family
Ownership:
Freehold
MLS® Number:
10360774
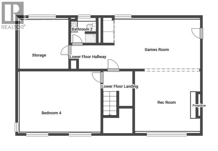
Bedroom:
4
Bathroom:
2
Year Built:
1974
Lot Size:
0.22
Listing Status:
Active
List Price:
$ 915,000
Place Nearby
(within radius 1.5 km)
Contact Agent
Download
Print