$ 395,900
–
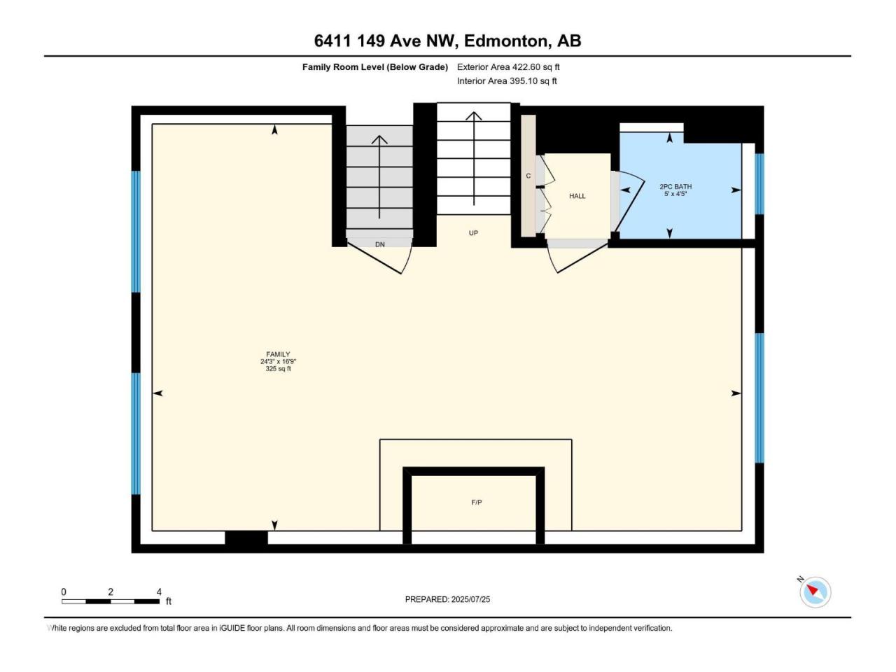
6411 149 AV NW
This listing presented by
Brad & Rick Hamer-Jackson
. Contact Brad by phone:
Brad 250-470-1422 | Rick 250-862-1622
or email direct
here
.
Overview
Print
Download
Contact Agent
Listing Info
Area:
Edmonton
Property Type:
Single Family
Ownership:
Freehold
MLS® Number:
E4468440
Bedroom:
3
Bathroom:
3
Year Built:
1968
Listing Status:
Active
List Price:
$ 395,900
Contact Agent
Download
Print